05 AUG 25 | Umbau zur Intensivpflegeeinrichtung

d6924ffd_1def86a2ccef857f4e766f6b717f5920.jpg

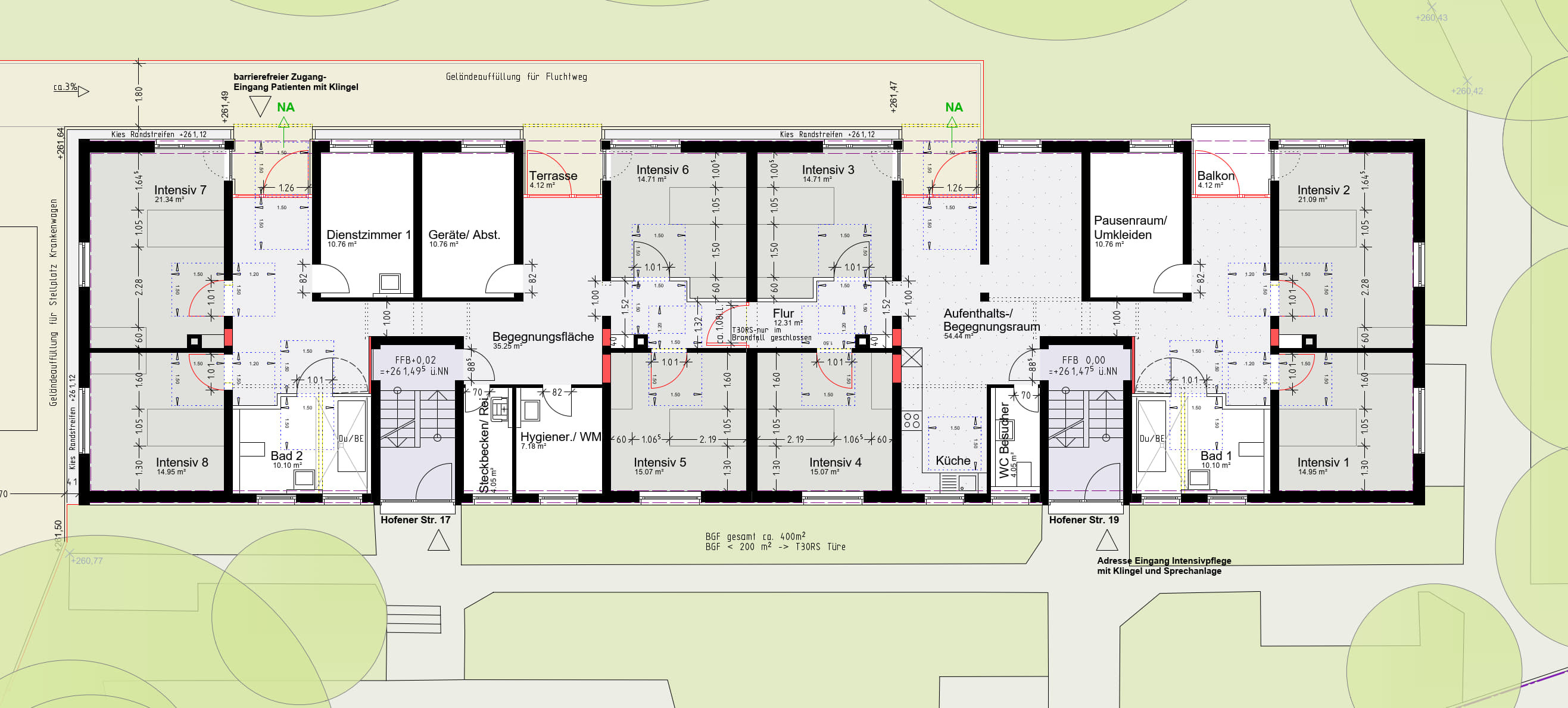
05 AUG 25 | Umbau zur Intensivpflegeeinrichtung

Für die Landes-Bau-Genossenschaft Württemberg eG konnten wir im Juni die Baugenehmigung für eine Nutzungsänderung von Wohneinheiten zu einer Intensivpflegeeinrichtung erwirken. Hierzu werden 4 Wohnungen zusammengelegt. Die Wohnungen konnten bereits entkernt werden und es beginnen nun die Umverlegungen der Bestandsleitungen und der Aufbau der neuen Raumgestaltung. Anbei ein paar Eindrücke.

5c276608_582d9ca8325467170e9cc21f27002d17.jpg

3bb8b8d5_1a539b7de61c3e5c8ab3fd05ff2c4a47.jpg

b924aa00_a60a34ad62f6266b9ded3b9dfb561bfa.jpg

370c77c8_806c70fc65811006a6993febd77b93b4.jpg